2019 Review
2019.1 謹賀新年 消防出初式 薬湯
謹賀新年
新年ご挨拶
亀岡市 消防出初式
健康はお風呂から
薬湯
トウキ 冷え性・血行障害
サンシシ 打撲・挫傷
ガイヨウ 皮膚のかゆみ
トウヒ 香気・温浴効果・消炎
センキュウ 皮膚病・筋骨の痛み
ベニバナ 血行不良
簡単にできる薬湯
2019.2 商品倉庫棟竣工 免疫力強化
商品倉庫棟 竣工
商品倉庫棟 内部
ワセリン初荷受
免疫力強化
クコシ
リュウガンニク
補中益気湯
竹茹温胆湯
オウギ
オウゴン
センキュウ
ニンジン
2019.3 創業88周年記念旅行 ミツロウ
創業88周年記念旅行
ボルネオ島
ミツロウとは
ミツロウ
サラシミツロウ
蝋と油脂
ミツロウの特性
暮らしの中の蝋
天然ミツロウの用途
ミツロウの精製
包装仕様
2019.4 管理棟 第2噴霧乾燥棟 オーラルフレイル
ファーストステージ
第2期工事 北西部再開発
商品倉庫棟 危険物倉庫棟 竣工式
第3期工事 御堂筋再整備
管理棟 第2噴霧乾燥棟 地鎮祭
紺綬褒章 伝達式
お花見会
オーラルフレイル
加齢による口腔機能の低下
トウキ
ケイヒ
ショウキョウ
ジュウヤク
甘露飲
2019.5 ラストスパート メンタルヘルスケア
ファーストステージ
第3期工事 御堂筋再整備
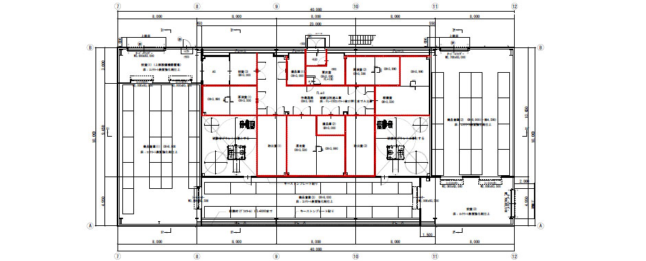
管理棟 立面図
管理棟 平面図
第2噴霧乾燥棟 立面図
第2噴霧乾燥棟 平面図
薬事日報 2019年4月12日
商品倉庫棟 竣工
管理棟 着工
御堂筋再整備 決起大会
亀岡工場 開設37周年
新人研修旅行2019
メンタルヘルスケア
精神疲労改善
ニンジン
コウジン
キクカ
ソヨウ
タイソウ
リュウガンニク
クコシ
2019.6 1stステージラストスパート 美容食品向け素材
100 to 100
2015-2030
ファーストステージ
第1期工事 都市ガス化
第2期工事 北西部再開発
商品倉庫棟
危険物倉庫棟
第3期工事 御堂筋再整備
抗酸化
抗糖化
アンチエイジング素材
キクカ
カンキョウ
ショウキョウ
クコシ
チンピ
セイヒ
キジツ
ケイヒ
ジュウヤク
ルイボス
2019.7 夏に万能な冷感素材
御堂筋 電気幹線 第1期工事
管理棟 柱状改良工事
第2噴霧乾燥棟 柱状改良工事
冷感素材
温感感受性TRPチャンネル
メントール
カンフル
ボルネオール
2019.8 創業89周年 清暑益気湯
創業89年
管理棟
地中熱
工場廃熱
ハイブリッド型空調
南伸計画
アカメガシワ植栽
御堂筋再整備
管理棟 捨てコン打設
基礎配筋工事
清暑益気湯
バクモンドウ
ニンジン
オウギ
ゴミシ
チンピ
ニンジン
ビャクジュツ
オウバク
トウキ
カンゾウ
2019.9 御堂筋再整備 基礎工事 骨粗しょう症
御堂筋再整備
管理棟 基礎工事
管理棟 埋戻し
第2噴霧乾燥棟 基礎工事
第2噴霧乾燥棟 埋戻し
敬老の日
骨粗しょう症
ジョテイシ
二至丸(にしがん)
チンピ
オウセイ
リュウガンニク
2019.10 御堂筋再整備 建方工事 IT眼症
管理棟
第2噴霧乾燥棟
鉄骨建方工事
御堂筋再整備
IT眼症
クコシ
キクカ
ニンジン
コウジン
杞菊地黄丸(こぎくじおうがん)
2019.11 地中熱空調 献薬 芍薬甘草湯
第2噴霧乾燥棟 棟上
人にやさしい
バリアフリー
管理棟 屋上土間コンクリート打設
屋上緑化
2階 西階段
1階 東階段
地中熱空調掘削工事
熱応答試験
環境にやさしい
御堂筋再整備
地域にやさしい
令和元年 神農祭
献薬 芍薬甘草湯
2019.12 総括
新年会 帝国ホテル大阪
亀岡市消防出初式
ワセリン初荷受
商品倉庫棟
御堂筋再整備
第3期工事 地鎮祭
紺綬褒章 伝達式
お花見会
薬事日報 管理棟着工
南進計画
電気幹線工事
管理棟建方
密閉型地中熱熱交換器
屋上緑化
篤志者表彰
噴霧乾燥機 地組
噴霧乾燥機 設置
